Home
Die Wohnung
Lage der Wohnung
Preise und Leistungen
Anreise
Kontakt und Buchung
Blick aus dem Fenster
Wohnzimmer
Küche
Schlafzimmer 1
Schlafzimmer 2
Bad
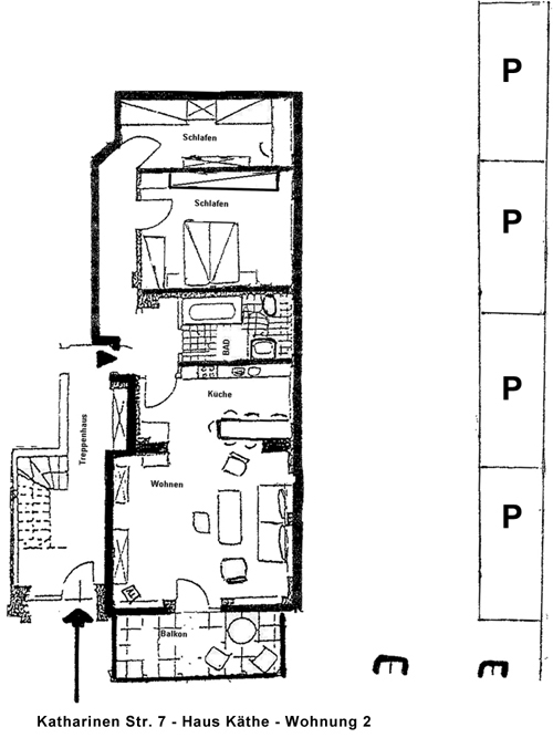
Wohnungsplan
Fotos